
Nýggjur frítíðarskúli á Eiði
Í dag, tann 18.12.2025, hava Eiðis kommuna og Sp/f Búð undirskrivað sáttmála um frítíðarskúla á Eiði.
Á bygdaráðsfundinum tann 16.12.2025 samtykti Eiðis bygdaráð at Eiðis kommuna skuldi undirskriva sáttmála við Sp/f Búð um at byggja nýggjan frítíðarskúla undir Kolshjøllum á Eiði.
Tað er Magnus Hansen sum hevur teknað frítíðarskúlan. Frítíðarskúlin er teknaður í samstarvi við leiðslu og námsfrøðingar á økinum.
Seinastu árini hevur frítíðarskúlin húsast í einum sethúsum, so eingin ivi er um at nýggju umstøðurnar koma væl við.
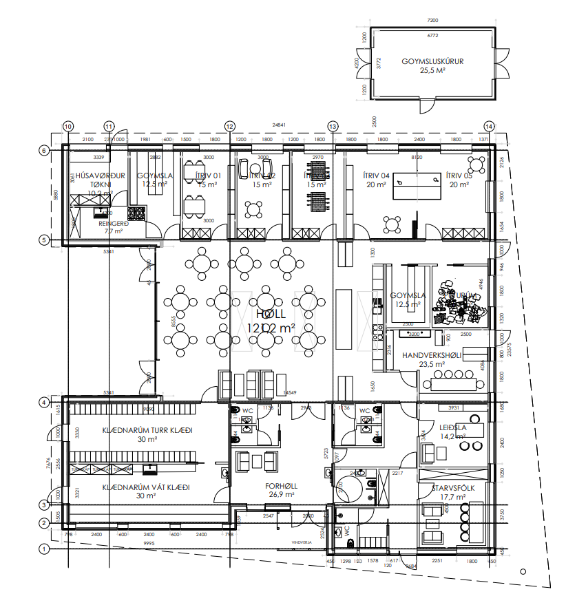
Frítíðarskúlin verður bygdur undir Kolshjøllum. Talan er um økið beint eystanfyri skúlan og vegur verður gjørdur niðan til lendið. Frítíðarskúlin verður lagdur soleiðis at børnini frítt kunnu ganga úr skúla og yvir í frítíðarskúla, uttan at tey skulu yvir um nakran veg. Frítíðarskúlin skal standa liðugur til skúlaársbyrjan 2027.
Tá sáttmálin var undirskrivaður, segði Anfinnur Kruse stjóri í sp/f Búð nøkur orð. Hann takkaði m.a. fyri álitið og góðar samráðingar og gleddi seg til eitt gott samstarv.
Eiðis kommuna takkar somuleiðis Sp/f Búð fyri góðar samráðingar og vit gleða okkum til eitt gott og spennandi samstarv.
Á myndini síggjast Anfinnur Kruse og Tonny Kruse fyri Sp/f Búð saman við Jógvani í Skorini og Tove Kruse Samuelsen fyri Eiðis kommunu.

